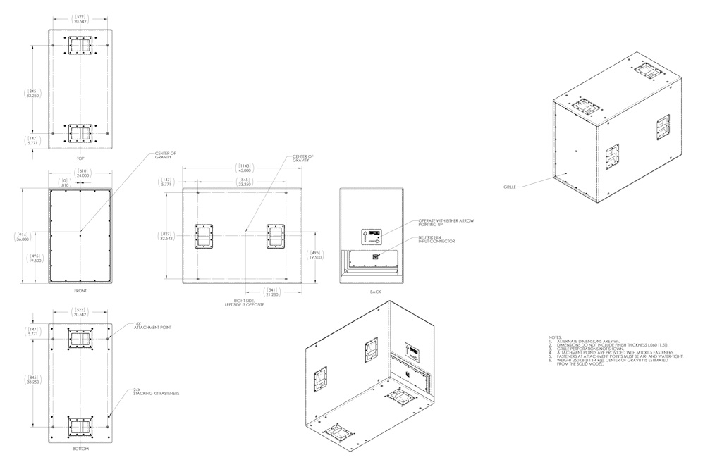
FHS-01NP

FHS-01NP
One 18 Inch Driver
40Hz~440Hz
Continuous Power 2400W
Nominal Power (AES) 1200W
4 or 8 ohm options
SPL: 133dB+ 1m
Input NL4FHS-01.html